方案展示
設計說明
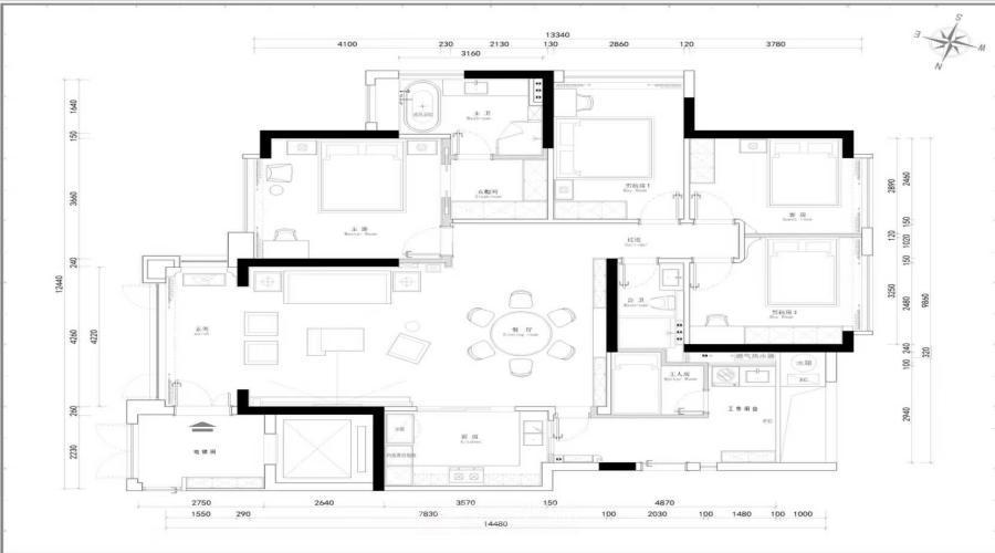
業主有2個兒子,所有在同一個小區買了2套房,之前的房子風格也是歐式的,現在也想做歐式,只是要求比之前的簡單點,格局上保留4房功能,有請住家保姆,廚房要求大
[展開]
關注我們
分享到
微信

立即預約
在線咨詢
在線客服
公安部備案號 44010602004978號